新着
横浜市 港北区
グランエクセラ港北/小机町2期
登録人数人
NEW
※3階建て仕様につき2階建て仕様の建物とは自社性能評価が異なります。
◆JR横浜線「小机」駅まで徒歩20分、「渋谷」駅まで38分
◆大型商業施設が身近に点在する、潤いあるライフスタイル
◆街区内道路を中心に繋がり描く全22邸の街並み
◆浴室換気乾燥機、蛇口一体型浄水器、ガラストップコンロなど設備充実
◆ZEH水準に適合した、高断熱・省エネ住宅
- 大型分譲地
- ガス仕様
コンセプト
LOCATION
「ららぽーと横浜」や「IKEA横浜」などの大型商業施設が生活圏内。

TRAIN ACCESS
「小机」駅から「新横浜」駅までわずか1駅。2023年に開業した
東急新横浜線利用で都心へスムーズにアクセス可能。

LOCATION
通勤に便利な駅徒歩8分、小学校も徒歩4分と家族に嬉しい住環境。

TRAIN ACCESS
「小机」駅から「新横浜」駅までわずか1駅。2023年に開業した
東急新横浜線利用で都心へスムーズにアクセス可能。

区画図・プラン

プラン
周辺環境・アクセス
他分譲地
交通・駅
スーパー
コンビニ
買い物
デパート
飲食店
教育
学区
-
{{item.name}}
[{{item.cate}}]{{item.place}}
徒歩:{{item.distance}}
- 該当なし
{{activePrice['start']}}万円
{{activePrice['end']}}万円
(税込)販売価格: お問い合わせください
| {{item.label}} | {{item.detail}} |
|---|
- {{item}}
- 分譲地は地図中心の黄色のピンに位置します。(実際の位置から多少ずれることがあります)
- 周辺施設は、分譲地の所在地から半径3km以内の施設(大型施設は半径5km以内、駅は半径10km以内)のみを表示しています。
- 分譲地から各施設への距離・徒歩時間は、GoogleMapの徒歩ルートを基に徒歩1分=80mにて算出しています。
- 上記に表示されている地図・ルート検索・周辺施設情報は、Google社が提供するGoogleMapより物件の所在地に合わせて取得しております。
そのため、表示されている施設情報および物件からの距離・移動時間などは実際と異なる場合があります。 - 物件から周辺施設までの距離・移動時間は、利用が想定される道路を通行した場合の情報です。
なお、必ずしも最短距離を保証するものではありません。
カーナビアドレス
横浜市港北区小机町54-1付近
- 現地は上記付近となります。
- 機種により対応できない場合がございます。
近隣分譲地のモデルハウス
近くの分譲地内にあるモデルハウスをご見学いただけます。
収納や家事動線、家の中に入ってくる陽光や風など、実際の暮らし心地を体感できます。
[ グランエクセラ鷺沼III/有馬2丁目3期 ]
1号地モデルハウス2LDK
モデルハウスの特徴

フリースペース
ビジネスのアイデアを考えるSOHO的な使い方や、お気に入りの書籍や趣味をじっくり楽しむリラックスした使い方などスタイルは様々。自分時間を満喫できるプライベートな空間です。
- フリースペース
- ウォークインクローゼット
- 2階LDK
- 玄関電子錠
設備仕様
地球に、家計に優しい
安心快適の標準設備仕様。
家族が過ごす生活空間を優しく包み込む設備。だからこそ品質にはこだわりを持ち、毎日を快適にしたい。
エコロジーな設備機器で、長期にわたる住まいのランニングコストが大きく違ってきます。
※住宅設備機器については号地によりメーカー及び仕様が変更となる場合がございます。
※標準設備仕様に記載のない設備につきましては、有料オプション工事となります。
キッチン
-

システムキッチン
家族でのコミュニケーションがとれる対面型システムキッチンです。横一列にシンクとコンロをまとめたシンプルな形です。動きやすさとスタイリッシュなデザインが魅力です。
-

両面焼きガラストップコンロ
ガラスコートによる深みある光沢と繊細なパール調の輝き。ベースの金属にガラス質を密着させているので、ヒビ割れなどにも強さを発揮します。
-

食器洗い乾燥機
ビルトインタイプ食器洗い乾燥機なら、カウンター上はいつもすっきりで、今まで手洗いにかけていた時間をご家族との時間に使えます。
-

浄水器一体型水栓
浄水機能が付いた一体型ハンドシャワー水栓を装備。食器洗いに便利なワンタッチ操作切替えタイプ。
-

人大カウンター
優れたインテリア性が高級感を演出。汚れ・キズ・熱にも強く、毎日のお手入れは、水拭きだけで清潔さを保てます。
-

人大シンク
耐久性に優れた、美しくなめらかな質感の人工大理石。すき間のない「シームレス接合」でお手入れ簡単。
-

オールスライド収納
奥に収納した物も上から確認できラクに取り出せるスライド式の収納です。扉を閉めるときの衝撃を和らげる内蔵式ダンパー「ブルモーションレール」を搭載。柔らかな使い心地が、上質感をいっそう高めます。
-

キッチンパネル
マグネットをつけることができる便利な壁パネルです。
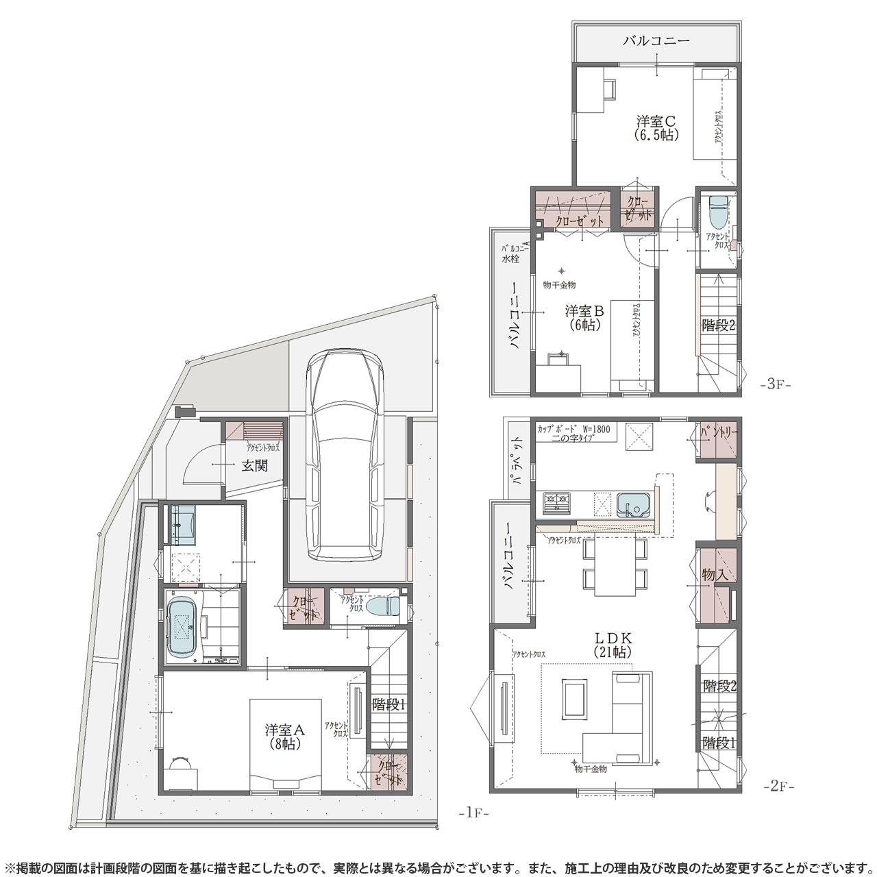
物件概要
| 名称 | グランエクセラ港北/小机町2期 |
|---|---|
| 所在地 |
神奈川県横浜市港北区小机町字宮原55番1外
Mapを確認
この所在地を入力してもカーナビやMapサイトでは正確に表示されません。こちらから現地をご確認ください。 |
| 交通 | JR横浜線「小机」駅より徒歩 19分( 約1,500m ) 〜 徒歩 20分( 約1,560m ) JR横浜線「鴨居」駅より徒歩 23分( 約1,800m ) 〜 徒歩 24分( 約1,860m ) JR横浜線・相鉄新横浜線・東急新横浜線・横浜市営地下鉄ブルーライン「新横浜」駅より約3,400m 〜 約3,460m 東急バス「住吉神社前」停留所より徒歩 1分( 約40m ) 〜 徒歩 2分( 約100m ) |
| 道路 | 5.5m幅員アスファルト舗装 |
| 私道負担 | あり 「販売区画図※3:9.77㎡(21号地所有)」 「販売区画図※4:5.49㎡(22号地所有)」 |
| 用途地域 | 第2種住居地域 |
| 地域指定 | あり 「第4種高度地区」 「準防火地域」 |
| 地域区分 | 市街化区域 |
| 総戸数 | 全22戸 |
| 取引態様 | 売主( 神奈川グランディハウス株式会社 ) |
| 販売支店 | 神奈川グランディハウス |
| 更新日 | 2025年10月24日 |
| 次回更新予定日 | 2025年11月7日 |
| 備考1 | ※更新・メンテナンス中に予約・売約済の場合はご容赦願います。 ※表示価格の他に、諸経費等が別途必要となります。 ※最新の販売状況につきましては「資料請求」ボタンよりお気軽にお問い合わせください。 |
| 備考2 | ※その他共有持分:有 販売区画図※1:3.83㎡持分各1/11(1,2,7,8,16〜22号地) 販売区画図※2:2.20㎡持分各1/11(3〜6,9〜15号地)」 |
| 販売戸数 | 5戸 |
|---|---|
| 設備 | 東京電力、 公営水道、 公共下水道、 都市ガス |
| 販売価格 | 4,880万円 〜 5,180万円(外構工事費・消費税込) ※販売価格には建物の消費税分が含まれます。 |
| 建ぺい率 | 60% |
| 容積率 | 200% |
| 敷地面積 |
69.20㎡(20.93坪)
97.40㎡(29.46坪)
|
| 建物面積 |
97.91㎡(29.55坪) 105.56㎡(31.87坪) |
| 構造 | 木造軸組工法3階建 |
| 建築確認番号 | 第R07SHC110354号(2025年7月7日) 他 |
| 建物完成年月 | 2026年1月中旬予定、 2026年2月下旬予定 |
merit.1待ち時間なしで見学できる
ご来場後にお待たせすることなく、ご希望のお時間で見学いただけます。また、お仕事の都合などで夕方以降の見学をご希望の方も、ご予約で日時指定いただければ対応可能です。
merit.2ご要望にあわせたご案内
ご予約時に、知りたいことや住宅購入についてのご要望を事前にお伝えいただけると、担当者がお客様に合わせて資料をご用意し、ご案内させていただきます。
物件のお問い合わせ













































































